Pianoro posizione centrale, comodo a tutti i servizi
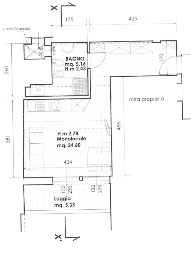
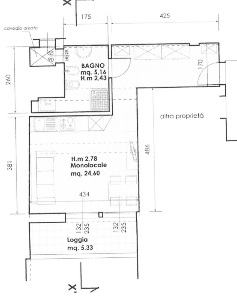
Proponiamo in vendita monolocale attualmente accatastato come ufficio, con pratica di cambio di destinazione d’uso in abitativo già approvata e oneri comunali già saldati.
L’immobile è composto da: ingresso ampio e arredabile, ideale per armadiature, bagno, zona giorno/notte con accesso ad una loggia.
L’appartamento è dotato di cappotto termico e riscaldamento tramite pompe di calore, caratteristiche che consentono di raggiungere la classe energetica C.
Basse spese condominiali.
Soluzione ideale per una persona o come investimento a reddito.
www.living-in.it La Tua agenzia immobiliare.
Le presenti informazioni non costituiscono elemento contrattuale -
Efficienza Energetica
- Classe EnergeticaC
- Prestazione Energetica GlobaleN
La Struttura Dispone Di
- Ascensore
- Balcone
- Condizioni: buono
- Cucina angolo cottura
- Giardino 0
- Piano: Basso
- Riscaldamento autonomo
- Terrazzo

