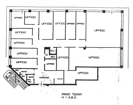
All’interno di un centro commerciale proponiamo in vendita un immobile di 561 mq, caratterizzato da ampi spazi e grande visibilità.
A Pianoro soluzione ideale da adibire a negozio, particolarmente adatta a catene della GDO, oppure a investitori e operatori del settore alla ricerca di un’operazione immobiliare con interessante potenziale di redditività e valorizzazione.
www.living-in.it
La tua agenzia immobiliare.
Le presenti informazioni non costituiscono elemento contrattuale.
Efficienza Energetica
- Classe EnergeticaG
- Prestazione Energetica GlobaleN
La Struttura Dispone Di
- Condizioni: nd
- Giardino 0
- Riscaldamento

