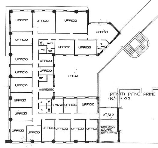
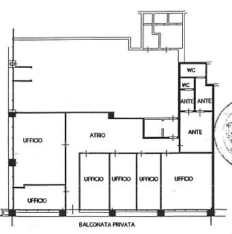
A Pianoro proponiamo in vendita un interessante complesso immobiliare composto da diverse unità commerciali di ampia metratura.
La vendita in blocco comprende:
Locali commerciali con superfici a: – 561 mq – 152 mq – 222 mq -328 mq – 574 mq – 383 mq – , con possibilità di accorpamento per ottenere spazi più ampi e funzionali;
3 appartamenti monolocali;
Deposito di 375 mq;
Posti auto di proprietà 54;
Autorimessa con 34 posti auto coperti oltre a dei garage.
Soluzione ideale per investitori o operatori del settore alla ricerca di un’operazione immobiliare con redditività potenziale e possibilità di valorizzazione.
www.living-in.it
– La tua agenzia immobiliare.
Le presenti informazioni non costituiscono elemento contrattuale.
Efficienza Energetica
- Classe EnergeticaND
- Prestazione Energetica GlobaleN
La Struttura Dispone Di
- Condizioni: nd
- Giardino 0
- Piano: Basso
- Riscaldamento

